Familientraum auf zwei Ebenen: Moderne 4-Zi Maisonette mit Luxusküche nahe Bansapark
Objektart
Adresse
Objektdaten
Informationen
Ausstattung
Details
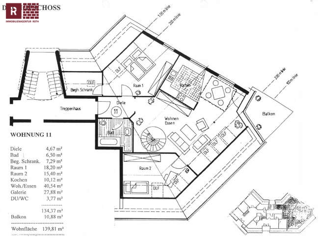
Entfliehen Sie dem Alltag in dieser wunderschön gestalteten DG-Maisonette über den Dächern von Neu-Isenburg. Das Herz dieser Wohnung schlägt im großzügigen Wohn/Ess/Küchenbereich mit Kochinsel und Zugang zur Dachterrasse -entspannte Momente garantiert.
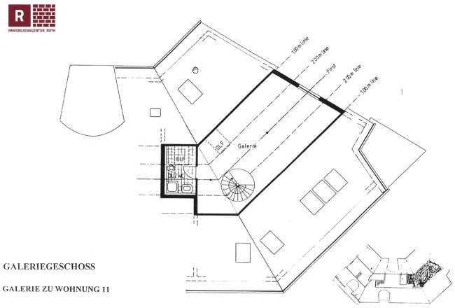
Die Wohnung erstreckt sich über zwei Etagen und ist durch eine L-förmige Treppe verbunden.
An den Wohnbereich ist das geräumige Schlafzimmer/Büro/Gästezimmer angebunden.
Das zweite Schlafzimmer, mit begehbarem Schrank, und das zweite Bad sind vom Wohn/Essbereich durch eine Tür abgetrennt -ideal für Kinder und Jugendliche.
Die obere Etage bietet ein (drittes) großes Elternschlafzimmer mit begehbarem Schrank und ein stylisches Tageslichtbad mit freistehender Badewanne und Walk-in-Dusche.
Die Wohnung bietet viel Stauraum und wurde 2018 aufwendig renoviert.
Nachhaltigkeit wird hier großgeschrieben: Ihnen stehen ein Balkonkraftwerk, eine Wallbox für den TG-Stellplatz und solarbetriebene Außenrolladen zur Verfügung.
+ Große Zimmer, guter Schnitt
+ Gehobene, familienfreundliche Wohngegend
+ Video-Gegensprechanlage
+ Parkett- und Fliesenböden
+ Solarbetriebene Außenrolladen
+ Lautsprecherverkabelung im Bad
+ Drei große Schlafzimmer (zwei davon mit begehbaren Schränken)
+ L-förmige Treppe (keine Wendeltreppe!)
+ Tageslicht-Bad mit Walk-in-Dusche und freistehender Badewanne
+ Zweites Bad mit Badewanne (Anschluss für Waschmaschine möglich)
+ Großer Kellerraum und Waschküche mit eigenem Anschluss
+ Moderne, große EBK mit Insel und Flügelkühlschrank
+ Schöne Dachterrasse mit Bambus-Boden und Balkonkraftwerk
+ Großer TG-Stellplatz für Auto und Fahrräder plus Wallbox für 100,00EUR/Monat
Die Wohnung befindet sich zentral in der Nähe des Bansaparks und ist über eine verkehrsberuhigte Straße erreichbar. Fußläufig sind der öffentliche Nahverkehr nach Frankfurt und Umgebung sowie sportliche Aktivitäten und Ausflüge mit dem Vierbeiner leicht erreichbar. Zudem sind Sie schnell auf den Autobahnen A3, A5 und A661 oder in Frankfurt.
Die hervorragende Lage von Neu-Isenburg verbindet alle Annehmlichkeiten des Alltags. In unmittelbarer Nähe finden Sie Naherholung im Stadtwald, Kitas, Kindergärten und Schulen sowie vielfältige Einkaufsmöglichkeiten. Die gute Anbindung und Infrastruktur machen die Wohnung ideal für Familien mit Kindern und berufstätige Pendler.
Die Immobilienagentur Roth bietet diese Immobilie exklusiv und im Alleinauftrag an.
Nutzen Sie die Gelegenheit und informieren Sie sich bei einer persönlichen Besichtigung.
Wir freuen uns auf Ihre schriftliche Kontaktaufnahme.
Alle Angaben zum Objekt stammen vom Auftraggeber. Eine Gewähr für die Richtigkeit können wir daher nicht übernehmen.
UNSER SERVICE FÜR SIE ALS EIGENTÜMER:
Planen Sie den Verkauf oder die Vermietung Ihrer Immobilie, so ist es für Sie wichtig, deren Marktwert zu kennen. Lassen Sie kostenfrei und unverbindlich den aktuellen Wert Ihrer Immobilie professionell durch uns als Immobilienspezialist einschätzen.
Der entsprechende Energieausweis wurde angefordert, zum Zeitpunkt der Erstellung der Immobilienanzeige lag uns dieser jedoch nicht vor. Nach § 16 EnEV 2014 ist der Verkäufer/Vermieter jedoch dazu verpflichtet, dem Kauf-/Mietinteressenten den Energieausweis oder eine Kopie davon bei der Besichtigung, vorzulegen und bei Abschluss des Vertrages im Original/Kopie zu übergeben.
